Some things are just better together – which is why we think you’ll really enjoy the enhanced HomeByMe integration offered in DraftSight 2023.
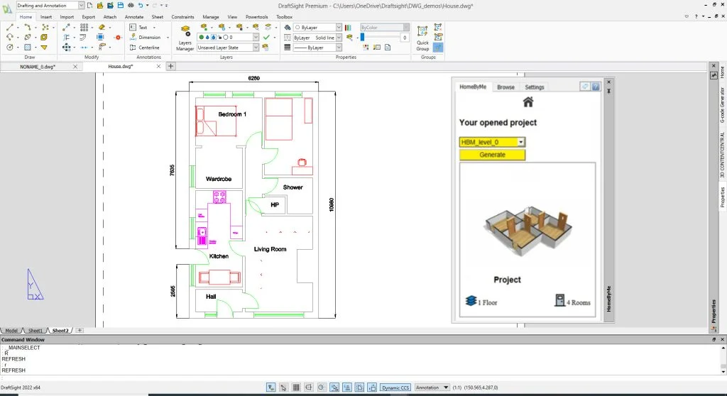
HomeByMe is an online 3D space planning service developed by Dassault Systèmes. Both easy-to-use and intuitive, HomeByMe allows you to create your floor plans in 2D and furnish your home in 3D while expressing your own unique decorating style.

DraftSight has provided an add-in for years that acts as a bridge between a HomeByMe project and a functional 2D CAD drawing. That interface has been updated in 2023 to provide a more intuitive user experience. In addition, the underlying program architecture has been completely revamped to give our customers even greater functionality.

With the DraftSight 2023 release, the enhanced HomeByMe add-in not only allows you to generate a fully dimensioned 2D CAD drawing but now you can make edits to your design directly in DraftSight and save them back to your HomeByMe project.
The HomeByMe integration is unique to DraftSight. You won’t find it in any other CAD product on the market. Download DraftSight 2023 on Monday November 21st, 2022 to experience the newly enhanced HomeByMe integration.
Interested in learning more about all of the new features coming to DraftSight in the 2023 release? Watch the webinar, What’s New in DraftSight 2023 on-demand to see a demo and explanation of all of the new features.
If you’re not a DraftSight user and want to check out all the ways to design in 2D, you can try it by downloading our free 30-day trial. There are no strings attached, and you won’t even need a credit card. Go here, and give it a try today.