
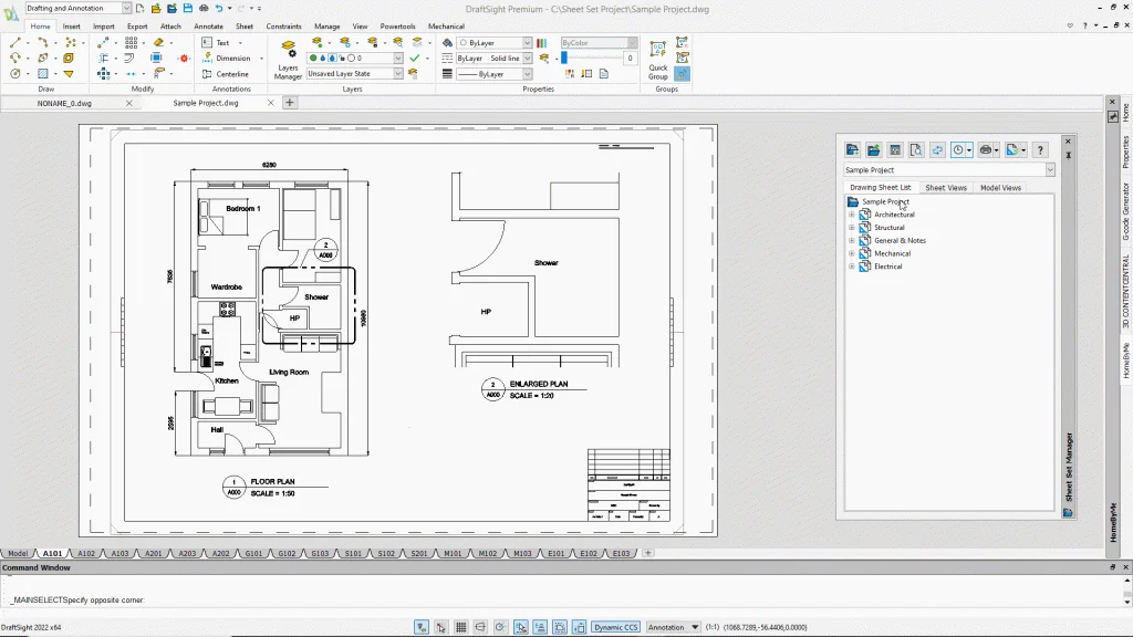
The Sheet Set Manager is an organizational tool that helps you manage a large set of drawing sheets across multiple DWG files. I am a big fan of this functionality because it prevents me from having to the tediously open individual sheets or files to apply properties and print settings globally. I use it to keep my project files straight – setting up a separate Sheet Set per project (with all the drawing files and layout tabs needed per project). The Sheet Set Manager was first introduced in DraftSight 2021 SP2 (Premium and Enterprise Plus), and DraftSight 2022 offers additional enhancements to help users better manage and organize drawings into easily manageable subsets. You will also find some powerful new features that continue to ease the management of large drawing sets. Learn more about Sheet Set Manager in our previous blog post.
Today, I want to introduce you to the additions you’ll find in the latest DraftSight 2022 release of Premium and Enterprise Plus.
Sheet List Tables
One of the best new features in DraftSight 2022 is the ability to insert associative Drawing Sheet List Tables. Inserting these snazzy tables is easy – just right-click on either the top-level Sheet Set, a Subset, a Named Selection Set, or even individual files.
Customize your table by adding one or more of the built-in properties, or you can use your own custom properties. Once your table is inserted into your drawing, you’ll find that DraftSight 2022 now hyperlinks the sheet number and title to the corresponding sheet. This allows you direct access to the sheet you need right from the table, with one simple click!

Updating your table has been streamlined in DraftSight 2022 as well. When changes happen to your sheets, simply select the table, right-click and use the Update Drawing Sheet List Table tool.
Pack and Go
If you’ve ever needed to send your drawing files to someone outside your organization, such as a client or contractor, you know it can sometimes go badly. You forget to send an image file, an XREF, or a key font – anything is possible! You need to make absolutely sure you package ALL the files that are related to a DWG and are necessary for it to appear and print correctly outside the office. Who has time for that?
The new Pack and Go feature makes collecting all those files a breeze! It’s available right from the Sheet Set Manager, or as a standalone command. Just right-click on the Sheet Set itself, or refine your selections by selecting a subset, a Selection Set (more on that later), or even individual files. So if you aren’t a Sheet set fan like I am – you can still use it to easily pack up and send your drawing files to others.

The initial dialog will have tabs where you can see all the drawing files and support files that they require. You’ll see things such as reference files (XREFs or Images) fonts, CTBs, plot configurations, etc. Should you wish to not include a particular drawing file or sheet, you can remove it here.

There are numerous settings and options for you to customize your transmittal package. You can choose to pack all your files into a ZIP file or create a folder-based set of files. Either allows various options for defining the pathing for the folders.
You can choose to bind references, and if you do, you can choose which type of entity that it will create. You also have the ability to include or exclude fonts, unloaded references, or print configurations. Pack and Go provides many options to ensure you deliver just the right information.
Named Selection Sets
Sometimes the overall organization of a project’s subsets don’t match your daily workflow. You may be working on a particular group of files within a category.
DraftSight 2022 now provides the ability to create named Drawing Sheet Selections. Simply select the sheets you want to include, access the creation tool from the convenient pulldown, and give it a name. Your set will appear in the list of named sets, which you can access at any time. Renaming or removing sets is fast and easy with the Manage feature.
Once your set is selected, you have access to all the tools available in the right-click menu. Open the files for editing, package them with the new Pack and Go tool, or choose any of the many Publish options.
Publish to DWF/DWFx
You’ll also notice the inclusion of a new Publishing method. DraftSight 2022 now provides the ability to publish to the popular DWF or DWFx file formats. If your workflow includes the use of electronic markup software for DWFs, you’ll be glad to know they are now supported in DraftSight. DWF files can be shared with others who want to review the file, but do not have access to a DWG editor.

Try It for Yourself
Let the software do the work for you! DraftSight 2022, now with even more features, is available to you free for 30 days. There really are no strings attached – you won’t even be asked for credit card information.
Visit https://www.draftsight.com/freetrial to get started.
