The idea of modernizing business operations can sound elusive to practically minded managers and engineers, but it simply boils down to leveraging the right technologies to make your business run more productively.
Many organizations rarely measure the success of their product development processes. It is often difficult to track down the source of process snafus. Even companies with such processes often have inflexible systems that make it almost impossible to get projects done efficiently. Tight turnaround times, poor communication, incompatible tools, rework, delays, and missed steps quickly turn into a chaotic pile of problems.
Don’t wait until frustration reigns among your engineering team. The 3DEXPERIENCE® Works portfolio of tools can be the conduit for improving your business and product development processes, all in a singular, collaborative environment on the cloud.

Streamline Your Process
The 3DEXPERIENCE Works apps allow your data and design activities to be organized into shareable dashboards that make it easy for your entire project team to stay organized. Powerful collaboration tools ensure streamlined design communication, standard lifecycles ensure the right people have access to data at the right time, and out-of-the-box change management provides organization and oversight of your business. And all in a managed environment with industry-leading security.
Here are 10 ways you can modernize your product development workflow.
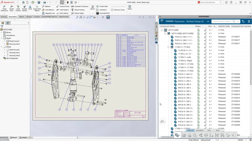
- One Place for All Your Tools and Files – When connected to the cloud-based 3DEXPERIENCE platform, you are literally one click away from managing design data, tasks, communication, and changes in a single environment that is optimized for product development.
- Made-for-engineers Document Management – Engineering-aware document management tools on the platform are built to facilitate the relationships between drawings, parts, and assemblies. Part numbers, descriptions, and previews are available to everyone on your team—in real time.
- Informed Decision-Making – Understanding the impact of a change and capturing a revision can be challenging. Access to powerful where used capabilities can help inform decision-making. And when a change is required, you have the confidence that the old revision can be easily retrieved at any time.
- Automate Time-consuming Tasks – Pulling part numbers, filling out title blocks, creating PDFs all take a lot of time. Tools that automate everyday activities like creating part numbers that are automatically added to the bill of material and creating typical deliverables, like PDFs, help increase productivity.
- Secure Product Data Access – Anyone in the company with the proper permissions can effortlessly search, find, and consume product data on the 3DEXPERIENCE platform. It’s easy to see the status of design components as well as who owns them, which is great for managers and users alike. Users can contribute directly to the product definition by updating design properties, even if they don’t have SOLIDWORKS®.

- Connected Collaboration – Move beyond phone calls and mountains of emails, attachments, or lost history. All communications are automatically captured when connected to the 3DEXPERIENCE platform.
- Digital Markup – Digital markup in a browser enables sketching of new ideas directly on the model, and annotations can be added to further convey intent. And the best part: the final markup is accessible in SOLIDWORKS. Even managers without CAD software or CAD skills can interrogate 3D models and participate in design review meetings on the platform.
- Task Management – Action and accountability are essential elements of any product design process. Whether on the web or inside SOLIDWORKS, it’s easy to assign or access a task and execute an activity. Assignees, task descriptions, and due dates can all be included in an easy-to-use interface. Status can be tracked through a shared dashboard.
- Feedback Management – Having a formal way to collect feedback is crucial for capturing, prioritizing, and processing incoming requests. Issues can be associated directly to model data and visualized for clarity with a simple drag and drop on the 3DEXPERIENCE platform. Managers can see real-time updates and communications on convenient dashboards.
- Integrated Change Management – Not every request for a change is actionable. But for those that are, you can transition issues directly to a change action with a single click. You can also add assignees, attach impacted designs, and automatically start revisions with full traceability to boot.
You can also get tips of modernizing your workflow by watching this video 10 Ways to Modernize Your Product Development with Cloud Data Management to learn more.

Increase Efficiencies
Today more and more people are working remotely, which typically requires an increasingly flexible work environment. The 3DEXPERIENCE Works portfolio is a suite of tools from SOLIDWORKS and Dassault Systèmes that brings your entire organization together in one secure environment in the cloud.
The 3DEXPERIENCE Works portfolio of products, which includes SOLIDWORKS Connected, has been developed to let you work smarter by focusing on high-value activities while letting the system handle more repetitive, routine, and time-consuming tasks.
3DEXPERIENCE Works enables efficiencies across multiple stages of product development: concept, design, simulation, and manufacturing. Everyone works together—including management—from the same real-time data.
If you have further questions or would like to see a demo, please contact your local reseller or click here to learn more.