Dassault Systèmes has launched SOLIDWORKS® 2022 of its portfolio of 3D design applications. SOLIDWORKS 2022 features performance enhancements and expanded functionalities that improve workflows for design, documentation, data management, and validation. You can also expand your capabilities by connecting to the 3DEXPERIENCE® Works portfolio to tackle more challenges, from design to manufacturing, while enabling cloud-based computing and collaboration.
Let’s take a quick look at just some of the enhancements in SOLIDWORKS 2022. (Note there are hundreds more!)

Assembly Performance and Workflow
Work faster with large assemblies through expanded workflows and improved performance. Save time when opening, closing, and saving assemblies with improved performance. Open subassemblies faster by opening them in Large Design Review mode from an assembly that is already opened in Large Design Review mode.

Expanded Use of Detailing Mode
Save time when opening and detailing a SOLIDWORKS drawing. Access Detailing mode for all drawings, regardless of the SOLIDWORKS version you saved them in or if you saved them in Detailing mode. Open a drawing in Detailing mode directly from an assembly already opened in Large Design Review mode.

More Efficient Geometric Dimensioning and Tolerancing
Work more intuitively when tolerancing your designs. Work directly in the graphics area guided by the user interface in building feature control frames cell by cell. Create tolerance frames per ISO 1101:2017 and the associated standards of ISO 2692, ISO 5458, ISO 5459, and ISO 8015.

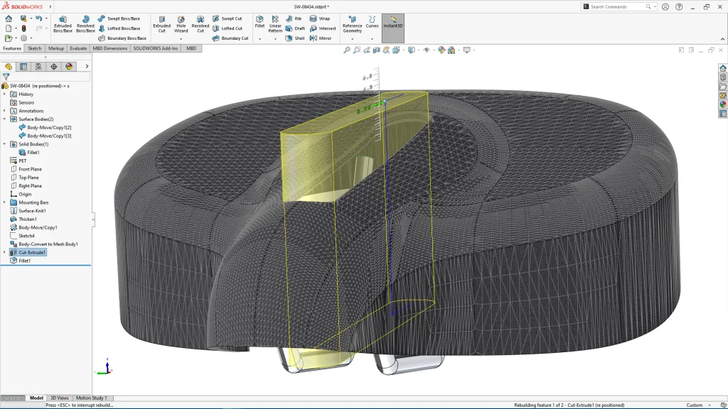
Hybrid Modeling
Save time when working with mesh geometry by using hybrid modeling. Create a hybrid solid or surface body that includes mesh BREP geometry and classic BREP geometry. Combine the advantages of mesh data with the accuracy and parametric features available in solid modeling.

Part Modeling Enhancements
Create part geometry faster. Easily create external threaded stud features using the Stud Wizard. Create a draft on both sides of parting lines simultaneously. Mirror geometry about two planes at once instead of mirroring twice. Create cosmetic threads more easily with an improved user interface and a more realistic appearance.

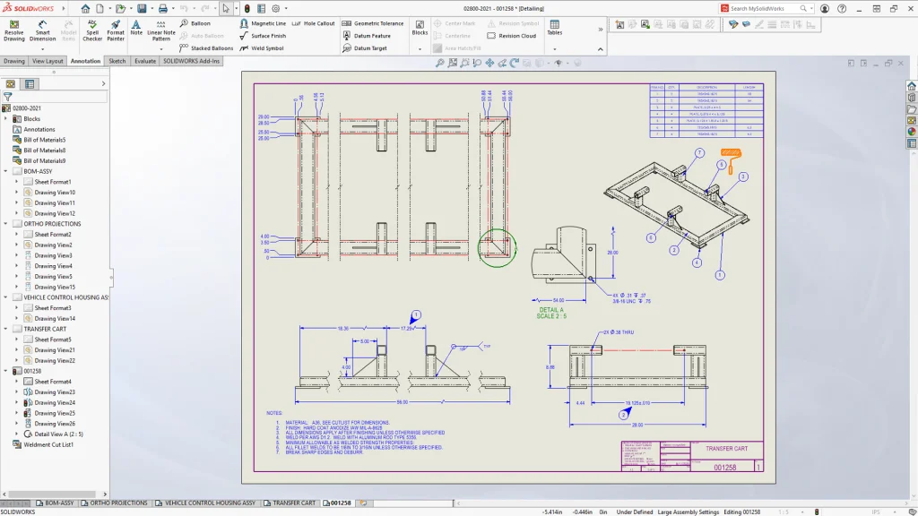
Cut List Support in Bill of Material (BOM) Tables
Take advantage of enhanced BOM functionality with cut list improvements. Save time and create detailed cut lists in BOM tables exactly the way you want them to appear by dissolving components in indented BOMs automatically or manually. Create balloons for sub-weldment cut list items in BOMs in which balloon properties correspond to the linked BOM. Create detailed cut lists for all BOM types, not just indented BOMs.

Configuration Tables
Save time when creating configurations with simplified integrated workflows. Create table-driven parts with SOLIDWORKS native tables without the need for Microsoft® Excel. Save time and effort with automatic creation of configuration tables when parts or assemblies have multiple configurations. Gain design flexibility with the additional functionality provided by Configuration Table, which is not available in the Modify Configurations dialog box.

Structure System and Weldment Improvements
Create weldments faster and more easily with structure system improvements. Easily add end caps to Structure System tube members with circular, square, or rectangular profiles. Create multiple secondary members using Between Points Member for the selected pair and secondary members with the Up to Members method. Save time by defining a reusable connection element and inserting it on a structure system part.

Performance Improvements for Import and Display
Speed up design with performance improvements in import and model display. Open DXF™ or DWG files into a part sketch faster. Open STEP files in SOLIDWORKS more quickly. Enjoy faster display of 3D textures and silhouette edges.

Improved Collaboration and Data Sharing
Increase your competitive advantage by tapping into the power and breadth of the 3DEXPERIENCE Works portfolio. Accelerate innovation and decision-making by connecting SOLIDWORKS 3D CAD to the cloud-based 3DEXPERIENCE platform where you can easily manage and share all your data and collaborate with others. Using 3DEXPERIENCE SOLIDWORKS, access your favorite 3DEXPERIENCE commands from multiple places within SOLIDWORKS, including the File Menu, Command Manager, and Context menu, with support for all 3DEXPERIENCE operations.
Work Together Smarter and Faster
Many of the 2022 SOLIDWORKS enhancements have been developed to let you work smarter by focusing on high-value activities while letting the system handle more repetitive, routine, and time-consuming tasks. At the same time, SOLIDWORKS incorporates a range of specialized new improvements that make it easier than ever to execute sophisticated designs, such as configuration tables, part modeling enhancements, and hybrid modeling.
SOLIDWORKS 2022 provides user-driven enhancements designed to speed workflows, expand access to usable data, and facilitate seamless collaboration. These enhancements add up to an optimized design environment that enables you to focus on innovation while producing high-performing designs that improve product quality while accelerating the product development process.
Over the past 18 months, many SOLIDWORKS customers have connected to the cloud-based 3DEXPERIENCE® platform for easy access to advanced design, data management, and manufacturing tools that allow implementation of new strategies and workflows. And of course, being connected to the platform enables collaboration with more people more easily—colleagues, customers, and vendors—regardless of location.
More and more people are working remotely, which typically requires an increasingly flexible environment. The 3DEXPERIENCE Works portfolio is a suite of tools from SOLIDWORKS and Dassault Systèmes that brings your entire organization together in one secure environment in the cloud.
3DEXPERIENCE Works enables efficiencies across multiple stages of product development: concept, design, simulation, and manufacturing. Everyone works together—including management—from the same, real-time data.
That means rapid design and engineering iterations can take place with less physical prototyping needed to finalize product development and manufacturing. It also means customers receive what they want faster, resulting in higher customer satisfaction and lower overhead costs. As a result, your product development teams are freed to invest in what matters most to your organization: Building more innovative products faster that beat the competition to market.
To discover the entire story of SOLIDWORKS 2022 or to ask further questions or get a demo, please contact your local reseller.


